PRESIDENT Online(プレジデントオンライン)
  • 人気記事
  • ビジネス
  • マネー
  • 政治・経済
  • キャリア
  • ライフ
  • 社会
  • 会員限定
  • 動画
検索
マイページマイページ
  • #書籍抜粋
  • #コミック
  • #朝ドラ
  • #日本史
  • #健康
  • #インドネシア
  • #中学受験
  • #国際経済
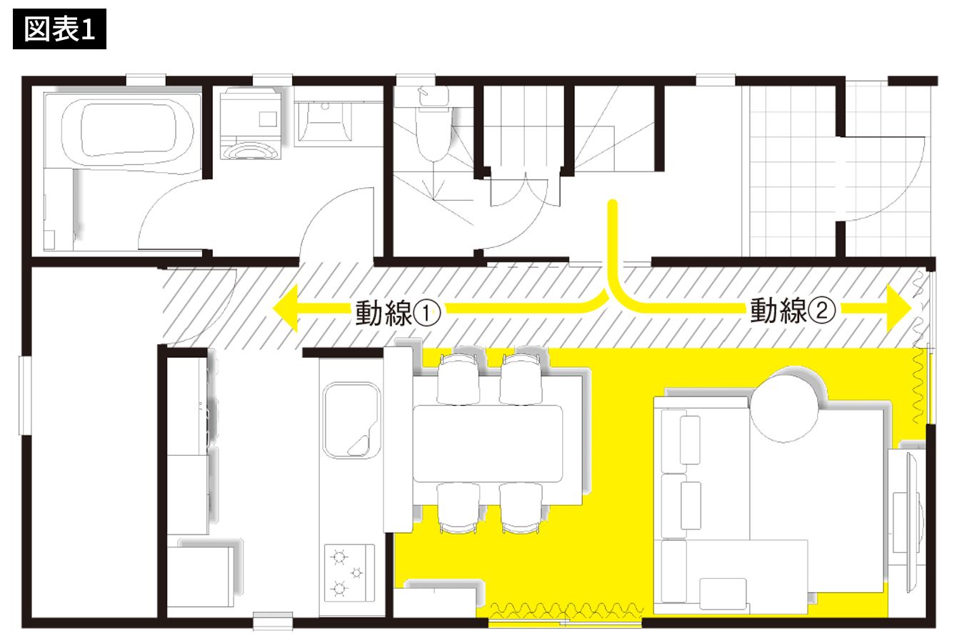
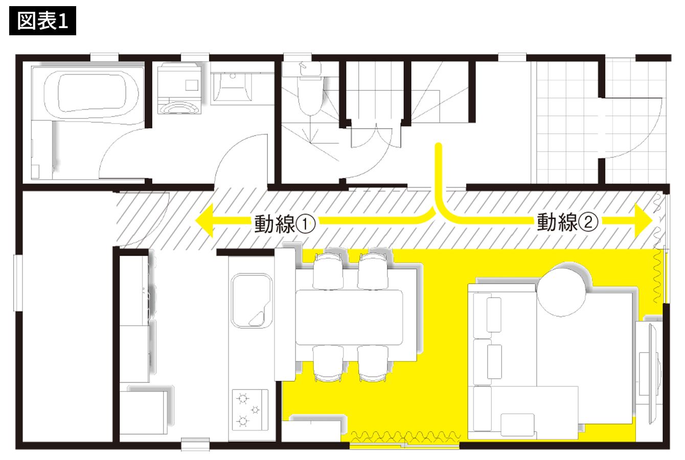
建築士なら一目でわかる…部屋が狭いと嘆く人が見落としている"間取り図には表れないもの"【2023編集部セレクション】
※写真はイメージです
出典=『狭い部屋でも快適に暮らすための家具配置のルール』より
しかまのりこ『狭い部屋でも快適に暮らすための家具配置のルール』(彩図社)
出典=『狭い部屋でも快適に暮らすための家具配置のルール』より
出典=『狭い部屋でも快適に暮らすための家具配置のルール』より
この写真の記事を読む
  • line
  • threds
  • copy
  • print
  • mail

あわせて読みたい

この記事の読者に人気の記事

人気記事ランキング
1時間 週間 無料会員 有料会員
毎日1万歩のウォーキングは必要なかった…最新研究でわかった「健康寿命を伸ばす歩数」の最適解【2026年2月BEST】
毎日1万歩のウォーキングは必要なかった…最新研究でわかった「健康寿命を伸ばす歩数」の最適解【2026年2月BEST】
「天皇陛下がこれほど率直な本心を示されたことはない」皇室研究家が会見から読み取った愛子さまへの強い望み【2026年2月BEST】
「天皇陛下がこれほど率直な本心を示されたことはない」皇室研究家が会見から読み取った愛子さまへの強い望み【2026年2月BEST】
学閥をやめ、手術が上手な医師だけ集めた…現役医師が「本当におすすめできる」と推す2つの大病院の名前
学閥をやめ、手術が上手な医師だけ集めた…現役医師が「本当におすすめできる」と推す2つの大病院の名前
「十分な老後資金があるから」ではない…働く60代が9割の中、「60歳」できっぱり仕事をやめる人の意外な理由
NEW
「十分な老後資金があるから」ではない…働く60代が9割の中、「60歳」できっぱり仕事をやめる人の意外な理由
「JR運賃値上げ」はJRを使わない人にも大打撃…「定期代が上がる」だけではない生活に重くのしかかる意外な影響
「JR運賃値上げ」はJRを使わない人にも大打撃…「定期代が上がる」だけではない生活に重くのしかかる意外な影響
だから84歳で毎日働ける…料理研究家・村上祥子さんが実践する足腰のヨボヨボ化を回避する"室内運動"
「歩道を走っただけで即、反則金6000円」はウソ…4月から一発で「青切符」を切られる"自転車の6つのNG行為"
"ヨボヨボ化"を進めるのはラーメンでもパスタでもない…血管・歯・腎臓を同時に壊す「最悪の麺」の正体
だから酒が飲めなくても安倍晋三は愛された…会計でも注文係でもない"下戸しかできない"飲み会の超重要役割
なぜ現存12天守のうち国宝は5つだけなのか…重要文化財の松山城と国宝の姫路城の決定的な違い
もっと見る
ハーンが54歳で「あまりにあっけなく」死んだ時、妻セツは36歳で長男は10歳、第4子の娘はわずか1歳だった
ハーンが54歳で「あまりにあっけなく」死んだ時、妻セツは36歳で長男は10歳、第4子の娘はわずか1歳だった
最初から「日本の新幹線」を選べばよかったのに…日本を裏切り、習近平にすがるインドネシア新幹線の末路
最初から「日本の新幹線」を選べばよかったのに…日本を裏切り、習近平にすがるインドネシア新幹線の末路
牛乳でも野菜ジュースでもない…肝臓外科医が「切り替えて1カ月で肝機能が改善する」と話す"飲み物3種"
牛乳でも野菜ジュースでもない…肝臓外科医が「切り替えて1カ月で肝機能が改善する」と話す"飲み物3種"
「脳トレ」「早口言葉」よりもうんと効果的…専門医が「認知症予防」に勧める「本当に脳にいいお手軽趣味」
「脳トレ」「早口言葉」よりもうんと効果的…専門医が「認知症予防」に勧める「本当に脳にいいお手軽趣味」
東日本大震災や南海トラフを上回る…「M9超えの巨大地震」が起きると専門家が警告する"2つの震源域"
東日本大震災や南海トラフを上回る…「M9超えの巨大地震」が起きると専門家が警告する"2つの震源域"
ビールでも焼酎でもない…医師が「脂肪肝まっしぐら」と注意を促す"飲みやすくて厄介なお酒"の種類
「ばけばけロス」には刺激が強い…小泉八雲の"愛憎"を引き継いだ、3人の息子の「朝に放送できない」その後
イワシでもサンマでもない…糖尿病専門医「がん・動脈硬化を予防し、美肌を保つ栄養素をとれる魚の種類」
"ヨボヨボ化"を進めるのはラーメンでもパスタでもない…血管・歯・腎臓を同時に壊す「最悪の麺」の正体
「ばけばけ」のセツは"夫の遺言"を守り通した…文豪・小泉八雲が築いた「莫大な財産」の"まさかの使い道"
もっと見る
学閥をやめ、手術が上手な医師だけ集めた…現役医師が「本当におすすめできる」と推す2つの大病院の名前
学閥をやめ、手術が上手な医師だけ集めた…現役医師が「本当におすすめできる」と推す2つの大病院の名前
「十分な老後資金があるから」ではない…働く60代が9割の中、「60歳」できっぱり仕事をやめる人の意外な理由
NEW
「十分な老後資金があるから」ではない…働く60代が9割の中、「60歳」できっぱり仕事をやめる人の意外な理由
毎日1万歩のウォーキングは必要なかった…最新研究でわかった「健康寿命を伸ばす歩数」の最適解【2026年2月BEST】
毎日1万歩のウォーキングは必要なかった…最新研究でわかった「健康寿命を伸ばす歩数」の最適解【2026年2月BEST】
国会での「台湾発言」だけではない…習近平が「メンツを潰された」と激怒した高市首相の"1枚の写真"
国会での「台湾発言」だけではない…習近平が「メンツを潰された」と激怒した高市首相の"1枚の写真"
「天皇陛下がこれほど率直な本心を示されたことはない」皇室研究家が会見から読み取った愛子さまへの強い望み【2026年2月BEST】
「天皇陛下がこれほど率直な本心を示されたことはない」皇室研究家が会見から読み取った愛子さまへの強い望み【2026年2月BEST】
だから酒が飲めなくても安倍晋三は愛された…会計でも注文係でもない"下戸しかできない"飲み会の超重要役割
「JR運賃値上げ」はJRを使わない人にも大打撃…「定期代が上がる」だけではない生活に重くのしかかる意外な影響
なぜ現存12天守のうち国宝は5つだけなのか…重要文化財の松山城と国宝の姫路城の決定的な違い
「フカフカの枕」は睡眠を壊す……東大との共同研究で「枕外来」の医師が結論づけた「体に正しい枕」3つの条件
牛乳でも野菜ジュースでもない…肝臓外科医が「切り替えて1カ月で肝機能が改善する」と話す"飲み物3種"
もっと見る
学閥をやめ、手術が上手な医師だけ集めた…現役医師が「本当におすすめできる」と推す2つの大病院の名前
学閥をやめ、手術が上手な医師だけ集めた…現役医師が「本当におすすめできる」と推す2つの大病院の名前
毎日1万歩のウォーキングは必要なかった…最新研究でわかった「健康寿命を伸ばす歩数」の最適解【2026年2月BEST】
毎日1万歩のウォーキングは必要なかった…最新研究でわかった「健康寿命を伸ばす歩数」の最適解【2026年2月BEST】
戦争に加担させられても、アメリカは日本を守らない…イランへの攻撃で露呈した中東の同盟国への酷い扱い
戦争に加担させられても、アメリカは日本を守らない…イランへの攻撃で露呈した中東の同盟国への酷い扱い
なぜ現存12天守のうち国宝は5つだけなのか…重要文化財の松山城と国宝の姫路城の決定的な違い
なぜ現存12天守のうち国宝は5つだけなのか…重要文化財の松山城と国宝の姫路城の決定的な違い
だから酒が飲めなくても安倍晋三は愛された…会計でも注文係でもない"下戸しかできない"飲み会の超重要役割
だから酒が飲めなくても安倍晋三は愛された…会計でも注文係でもない"下戸しかできない"飲み会の超重要役割
一見ヘルシーだが食べ方次第で老化が加速する…糖尿病専門医が注意を促す「やってはいけない豆腐の食べ方」
だから84歳で毎日働ける…料理研究家・村上祥子さんが実践する足腰のヨボヨボ化を回避する"室内運動"
「十分な老後資金があるから」ではない…働く60代が9割の中、「60歳」できっぱり仕事をやめる人の意外な理由
NEW
「ホルムズ海峡の封鎖→食料危機」はウソ…新聞・テレビが報じない"日本の食料危機"を作り出す本当の原因
大谷翔平選手が高年収なのに質素な真の理由
もっと見る
INFORMATIONSponsored
  • Over80「50年働いてきました」
  • 総研サイト
  • 法律の新常識
PRESIDENT 2026年4月17日号 間違いだらけの投資の常識
間違いだらけの投資の常識
AMAZONで購入する PRESIDENT Storeで購入する
雑誌の予約購読はこちら
プレジデントFamily 2026年春号 頭のいい子が育つ「育脳」大百科
頭のいい子が育つ「育脳」大百科
AMAZONで購入する PRESIDENT Storeで購入する
雑誌の予約購読はこちら
ライフの人気記事
  • ハーンが54歳で「あまりにあっけなく」死んだ時、妻セツは36歳で長男は10歳、第4子の娘はわずか1歳だった
    ハーンが54歳で「あまりにあっけなく」死んだ時、妻セツは36歳で長男は10歳、第4子の娘はわずか1歳だった
  • 牛乳でも野菜ジュースでもない…肝臓外科医が「切り替えて1カ月で肝機能が改善する」と話す"飲み物3種"
    牛乳でも野菜ジュースでもない…肝臓外科医が「切り替えて1カ月で肝機能が改善する」と話す"飲み物3種"
  • 「脳トレ」「早口言葉」よりもうんと効果的…専門医が「認知症予防」に勧める「本当に脳にいいお手軽趣味」
    「脳トレ」「早口言葉」よりもうんと効果的…専門医が「認知症予防」に勧める「本当に脳にいいお手軽趣味」
  • ビールでも焼酎でもない…医師が「脂肪肝まっしぐら」と注意を促す"飲みやすくて厄介なお酒"の種類
    ビールでも焼酎でもない…医師が「脂肪肝まっしぐら」と注意を促す"飲みやすくて厄介なお酒"の種類
PRESIDENT 他メディア
  • 「蒸す、ゆでる、煮る」がベスト、では「電子レンジ」は…糖尿病専門医「老化を遠ざける調理法の種類」
    トップページへ
  • 【脂がバターのように甘い!】高級魚クロムツの干物は、とろけるような上品な味わいで白飯が止まらない
    トップページへ
  • わが子の人生を「小6がピーク」にしてはいけない…中学受験で「幸せになる子」と「不幸になる子」の決定的な違い
    トップページへ
PRESIDENT Online(プレジデントオンライン)
プレジデントオンラインについて
  • お知らせ
  • 著者一覧
  • このサイトについて
  • 会員登録について
  • 個人情報の取り扱い
  • 特定商取引法に基づく表示
  • 広告掲載
  • 運営会社
  • お問い合わせ
関連サイト
  • PRESIDENT Growth
  • WOMAN
  • dancyu
  • STYLE
  • PRESIDENT BOOKS
  • プレジデントFamily Online
関連事業
  • プレジデント総合研究所
  • dancyu総合研究所

© 2008-2026 PRESIDENT Inc. すべての画像・データについて無断転用・無断転載を禁じます。